Podsljemenska zona – Črna Voda – stan 76,80 m2

Opis

Stan se nalazi u ulici Črna Voda 25 na razmeđi naselja Gračani i Markuševec. U blizini nalazi se shopping centar Gračani, škola, dječji vrtić i igrališe. Centar grada nije daleko uz dostupnu tramvajsku liniju iz Gračana, autobus iz ulice Markuševečka cesta (udaljene 350 metara) ili svega 10ak minuta automobilom iz vlastite garaže. Ljubitelji najpoželjnije zagrebačke rekreacijske zone Sljeme biti će iz svog stana tek 2 km udaljeni od početka Sljemenske ceste i podnožja žičare ili najpoznatijih sljemenskih staza.
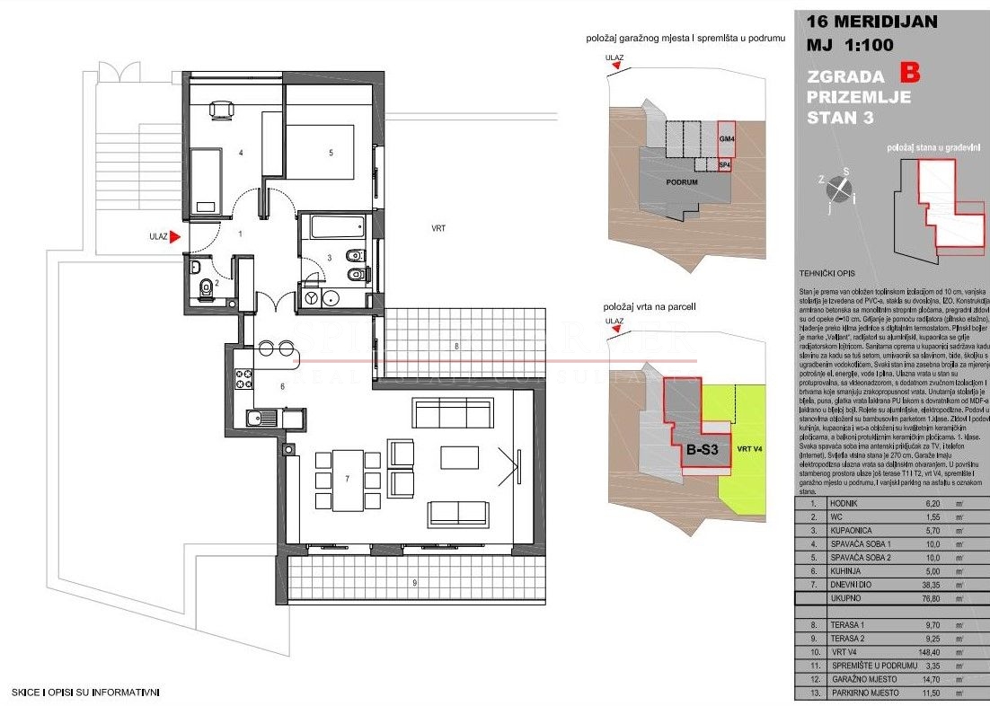
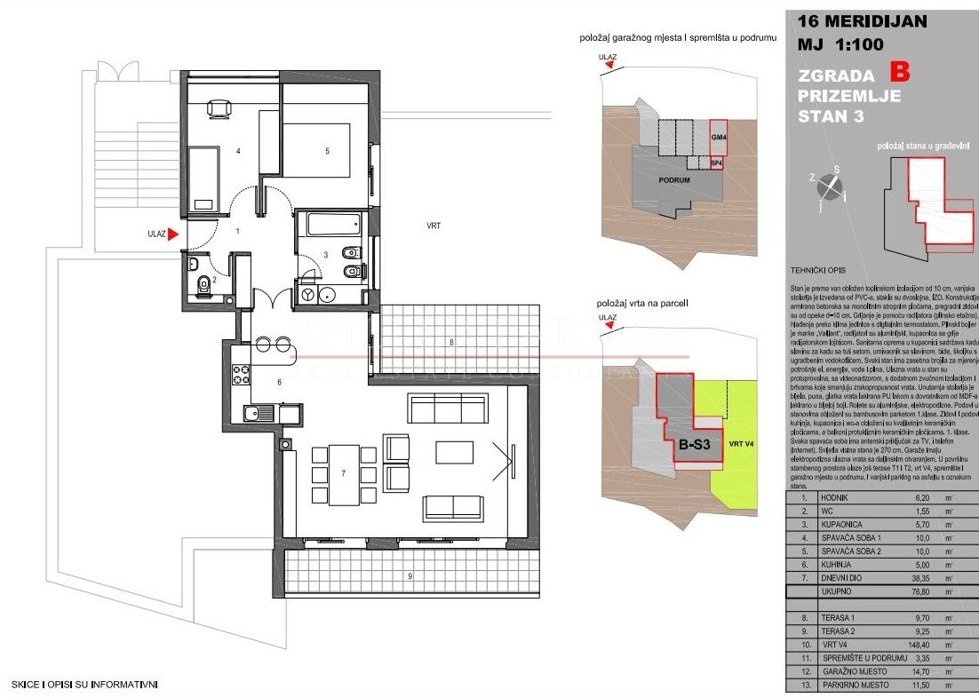
Trosobni stan u prizemlju oznake S3, u etažnom elaboratu označeno brojem 3, površine 76,80 m2, koji se sastoji od: hodnika, WC-a, kuhinje, dnevnog dijela, kupaonice, 2 sobe i pripadajuće nenatkrivene terase T1 površine 9,70 m2, pripadajuće nenatkrivene terase T2 površine 9,25 m2, pripadajućeg vrta V4 površine 148,40 m2, pripadajućeg vrta V5 površine 51,00 m2, pripadajućeg spremišta SP4 u podrumu površine 3,35 m2, pripadajućeg garažnog mjesta GM4 površine 14,70 m2 i pripadajućeg parkirališnog mjesta PM1 površine 12,10 m2.
VAŽNO: Pripadajući vrt V5 u naravi predstavlja dva dodatna parkirališna mjesta s oznakom C-S3 i C-S2, koja pripadaju stanu C-S3 i C-S2. Stanu u naravi pripada drugo vanjsko PM, kao što je određeno etažnim elaboratom, i u naravi je označeno oznakom na tlu 25A-3.
Stan se kupuje po sistemu viđeno-kupljeno. Slike u oglasu pokazuju slike svih stanova u kompleksu te ne moraju nužno prikazivati oglašeni stan.
Iskazana cijena uključuje PDV te se ne primjenjuje PPN od 3%.
Za više informacija posjetite http://www.16meridijan.hr/ ili kontaktirajte Spiller Farmer. 

Osoba za kontakt

Tomislav Ptiček

Kontaktirajte nas

Osoba za kontakt

Tomislav Ptiček

Spiller Farmer
Pregled privatnosti

Ova web stranica koristi kolačiće tako da vam možemo pružiti najbolje moguće korisničko iskustvo. Podaci o kolačićima pohranjuju se u vašem pregledniku i obavljaju funkcije poput prepoznavanja kod povratka na našu web stranicu i pomaže našem timu da shvati koji su dijelovi web stranice vama najzanimljiviji i najkorisniji.