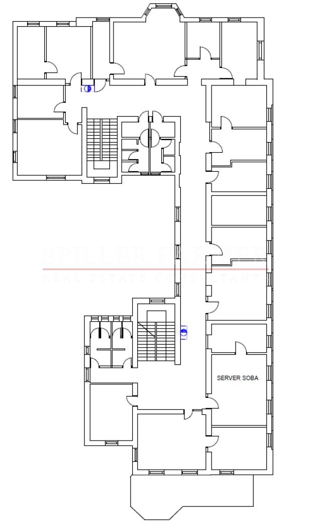
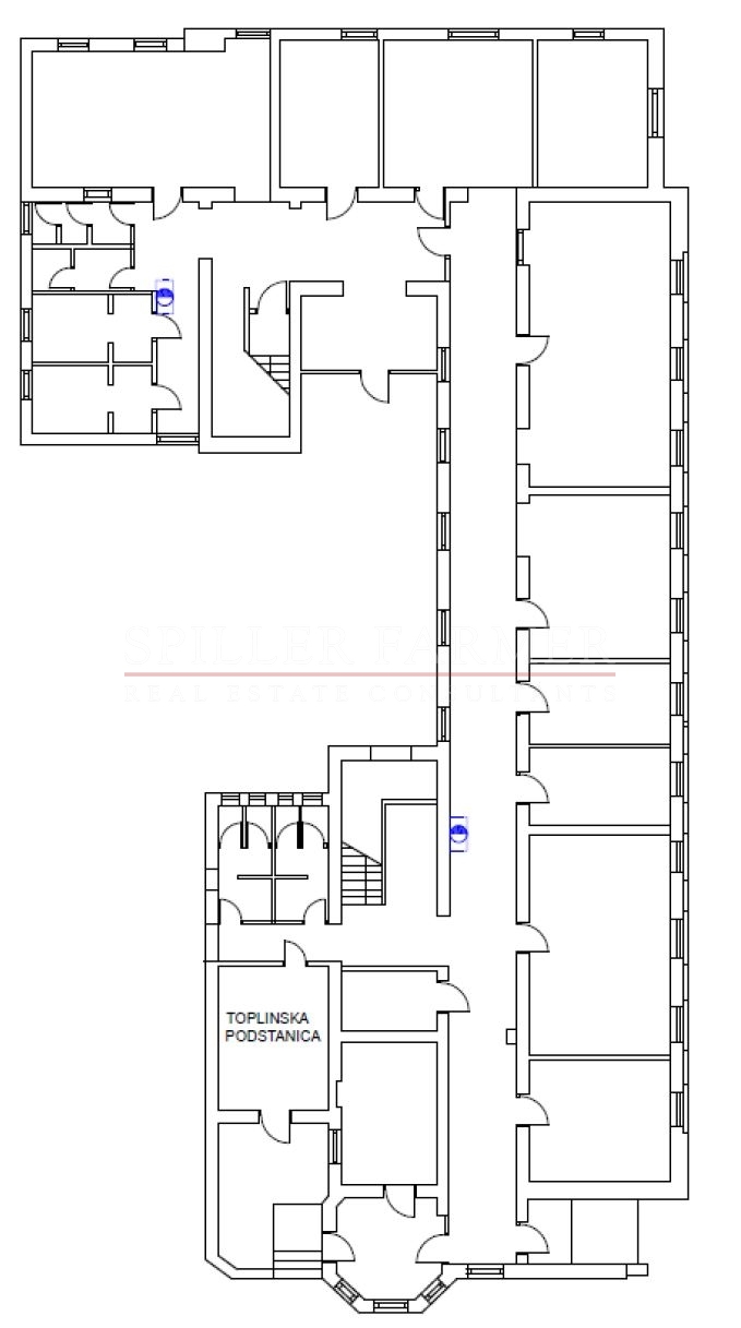
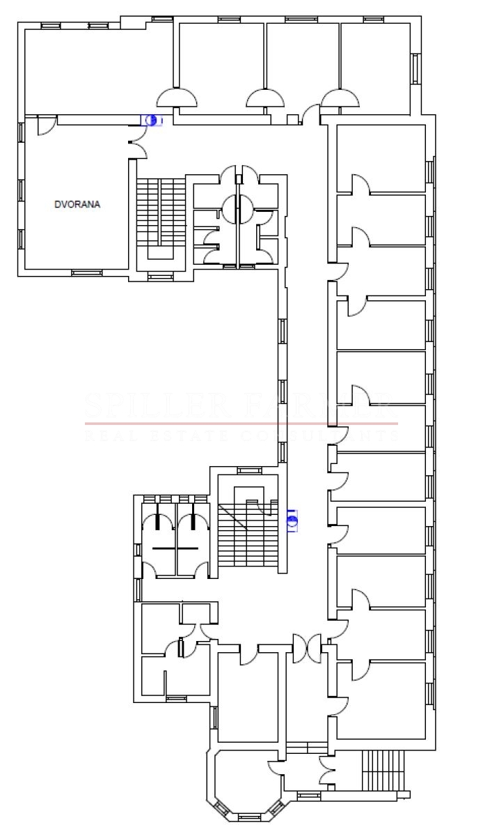
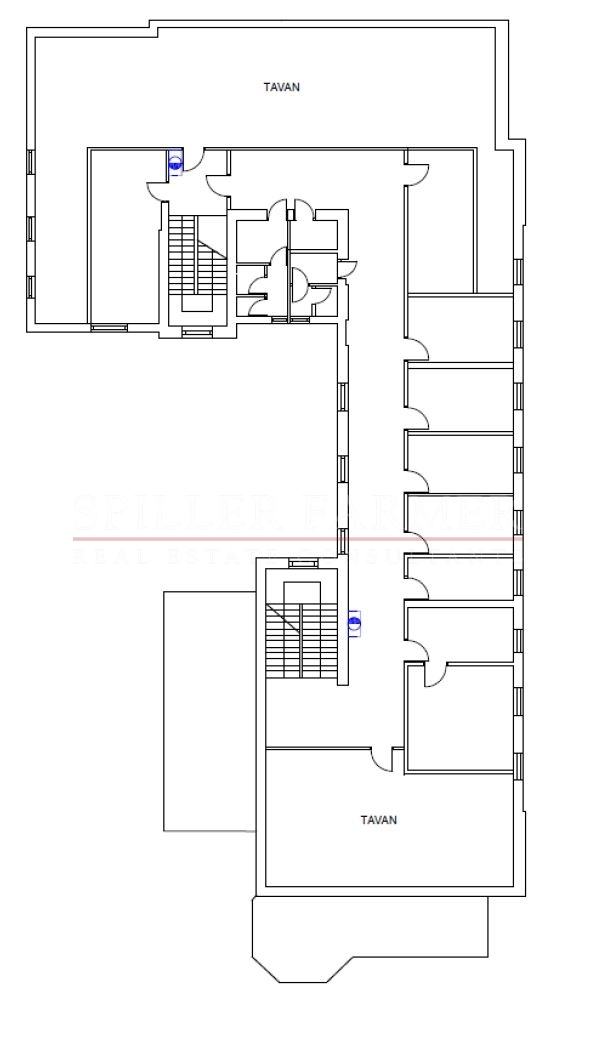
Poslovna zgrada nalazi se na zapadnom dijelu grada Zagreba. Režije su uključene u cijenu osim troškova telekomunikacija i čišćenja. Arhitektonski oblikovana samostojeća zgrada razvedenog tlocrta, katnosti suteren + visoko prizemlje + 1 kat + dijelom potkrovlje. Zgrada ima dva ulaza i dva armiranobetonska dvokraka stubišta od kojih se jedno uzdiže kroz sve četiri etaže. U svakoj etaži (izuzev potkrovlja) nalaze se po 2 para WC-a s predprostorom za pranje ruku, a sve ostale prostorije prilagođene su uredskoj djelatnosti sa nešto priručnih skladišta (4 sobe u suterenu) i čajnom kuhinjom u prizemlju. Postoji optički priključak, zakupodavac će oličiti prostor te je moguća organizacija parkinga u dvorištu zgrade i prehrana u kantini zakupodavca u susjednom objektu. Za više informacija kontaktirajte Spiller Farmer!
Agencijska naknada iznosi 10% + PDV od ukupne godišnje najamninezakupnine.
Poslovna zgrada za najam/zakup – 2362,45 m2 – Črnomerec
- 28350
-
poslovni prostor
-
2362.45m2
-
Zagreb, Grad Zagreb
-
poslovni prostor
-
2362.45m2
-
Zagreb, Grad Zagreb
- 28350
- ID: 614
- Etaža: suteren,prizemlje,prvi,potkrovlje
- Uža lokacija: Črnomerec
- Godina izgradnje: /
- Građevinska dozvola: /
- Uporabna dozvola: /
- Općina: Grad Zagreb
- Provizija: 10% godišnje zakupnine (jednokratno)+ PDV
- ID: 614
- Etaža: suteren,prizemlje,prvi,potkrovlje
- Uža lokacija: Črnomerec
- Županija: Grad Zagreb
- Provizija: 10% godišnje zakupnine (jednokratno)+ PDV