Vrbik – Uredski prostor za najam

Opis

U centru Vrbika, na adresi Kninski trg 7 se nalazi poslovni prostor koji se daje u najam.
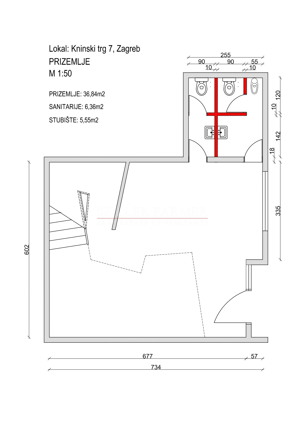
Predmetni prostor se smjestio u prizemlju stambene zgrade sveukupne površine 130 m². Sastoji se od podruma, prizemlja, galerije te dva sanitarna čvora.
Prostor je prostran, dobro osvijetljen prirodnom svjetlošću i ima funkcionalan raspored, što ga čini idealnim za razne uredske djelatnosti. Osim toga, u blizini su parking, restorani i ostale pogodnosti, koje dodatno olakšavaju poslovanje.
Agencijska naknada za posredovanje iznosi: 1 mjesečna zakupnina + PDV.
Za više informacija budite slobodni kontaktirati Spiller Farmer.
  

Osoba za kontakt

Ivana Lola Jurin

Kontaktirajte nas

Osoba za kontakt

Ivana Lola Jurin

Spiller Farmer
Pregled privatnosti

Ova web stranica koristi kolačiće tako da vam možemo pružiti najbolje moguće korisničko iskustvo. Podaci o kolačićima pohranjuju se u vašem pregledniku i obavljaju funkcije poput prepoznavanja kod povratka na našu web stranicu i pomaže našem timu da shvati koji su dijelovi web stranice vama najzanimljiviji i najkorisniji.