Podsljemenska zona – Črna Voda – stan 95,65 m2

Opis

Stan se nalazi u ulici Črna Voda 25 na razmeđi naselja Gračani i Markuševec. U blizini nalazi se shopping centar Gračani, škola, dječji vrtić i igrališe. Centar grada nije daleko uz dostupnu tramvajsku liniju iz Gračana, autobus iz ulice Markuševečka cesta (udaljene 350 metara) ili svega 10ak minuta automobilom iz vlastite garaže. Ljubitelji najpoželjnije zagrebačke rekreacijske zone Sljeme biti će iz svog stana tek 2 km udaljeni od početka Sljemenske ceste i podnožja žičare ili najpoznatijih sljemenskih staza.
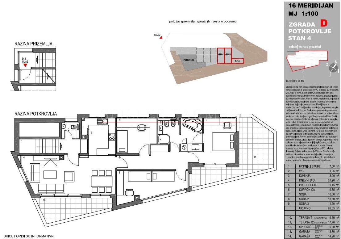
Četverosobni   stan u potkrovlju oznake S4,  u etažnom elaboratu označeno brojem 4, površine 95,65 m2, koji se sastoji od hodnika s stubištem,  WC-a,  kuhinje, dnevnog dijela, predsoblja,  kupaonice, 3. sobe  i pripadajuće nenatkrivene terase  T1 površine 9,60 m2,nenatkrivne terase T2 površine 17,70 m2, spremišta SP2 u podrumu površine 5,10 m2, spremišta SP3 u podrumu površine 5,70 m2, spremišta SP4  u podrumu površine 5,90 m2 , garažnog mjesta GM4 površine 13,70 m2 i garažnog  mjesta GM 5   površine  14,20 m2.
VAŽNO: Stanu u naravi  pripada samo spremište SP4 u podrumu, veličine 5,90 m2, ali ne i spremišta SP2 i SP3, kao što je navedeno u elaboratu i ZK izvatku, iz kojeg proističe da sva 3 spremišta pripadaju stanu S4 u ovoj zgradi.
Stan se kupuje po sistemu viđeno-kupljeno. Slike u oglasu pokazuju slike svih stanova u kompleksu te ne moraju nužno prikazivati oglašeni stan.
Iskazana cijena uključuje PDV te se ne primjenjuje PPN od 3%.
Za više informacija posjetite http://www.16meridijan.hr/ ili kontaktirajte Spiller Farmer! 

Osoba za kontakt

Tomislav Ptiček

Kontaktirajte nas

Osoba za kontakt

Tomislav Ptiček

Spiller Farmer
Pregled privatnosti

Ova web stranica koristi kolačiće tako da vam možemo pružiti najbolje moguće korisničko iskustvo. Podaci o kolačićima pohranjuju se u vašem pregledniku i obavljaju funkcije poput prepoznavanja kod povratka na našu web stranicu i pomaže našem timu da shvati koji su dijelovi web stranice vama najzanimljiviji i najkorisniji.