Uredski prostor – podzakup – 296 m2

Opis

Poslovna zgrada nalazi se na južnom ulazu u grad u blizini cestovnog čvora Zračna luka – Karlovac – Ljubljana – Slavonski Brod, a svega 15-ak minuta od samog centra grada. Lokacija je jednostavno pristupačna osobnim automobilom, kao i javnim gradskim prijevozom, s autobusnom stanicom ispred objekta.
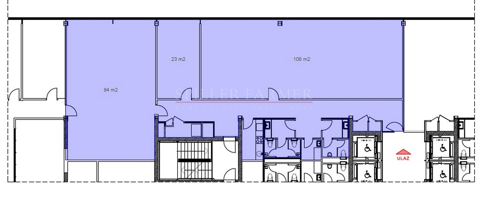
Uredski prostor površine cca. 296 m² smješten je na petom katu poslovne zgrade s liftom, a sastoji se od dva velika open space prostora i jedne uredske sobe, čajne kuhinje te muških i ženskih sanitarnih čvorova. Prostor se daje u podzakup u viđenom stanju, a uključuje duple podove s tapisonom, spuštene stropove s ugrađenom rasvjetom, električnu mrežu, utičnice, IT CAT6 strukturnu mrežu, 4-cijevni HVAC sistem (grijanje i hlađenje), pomoćni generator i UPS. Pregradni zidovi izvedeni su od knaufa te ih je moguće prilagoditi potrebama zakupnika. Objekt je opremljen protupožarnim i protuprovalnim alarmom, sustavom kontrole pristupa, 24-satnim osiguranjem i video nadzorom. 

Osoba za kontakt

Mirna Nguyen

Kontaktirajte nas

Osoba za kontakt

Mirna Nguyen

Spiller Farmer
Pregled privatnosti

Ova web stranica koristi kolačiće tako da vam možemo pružiti najbolje moguće korisničko iskustvo. Podaci o kolačićima pohranjuju se u vašem pregledniku i obavljaju funkcije poput prepoznavanja kod povratka na našu web stranicu i pomaže našem timu da shvati koji su dijelovi web stranice vama najzanimljiviji i najkorisniji.